Bilocale in vendita

Milano, Via Carlo Poma - Bronzetti
€ 420.000
62 Mq 62 Mq
1 bagno 1 bagno

Bilocale in vendita

Milano, Via Carlo Poma - Bronzetti

Descrizione annuncio

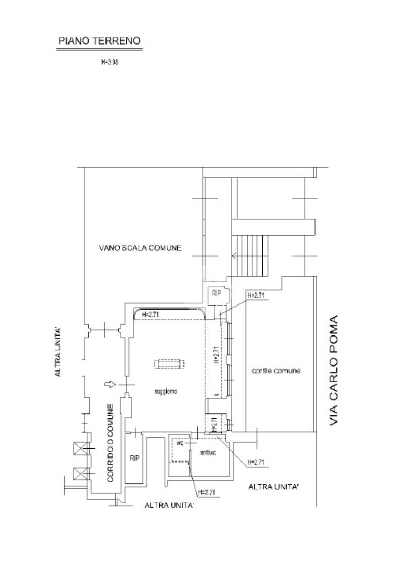
In Via Poma 1, in un condominio signorile, proponiamo in vendita un elegante appartamento al piano rialzato, completamente ristrutturato e arredato con finiture di pregio, libero subito.

L’immobile si compone di un unico grande ambiente: un loft accogliente e moderno, in stile americano, studiato per offrire comfort e funzionalità, oltre a un ampio bagno.

La posizione è strategica, a due passi dalla fermata M4 Dateo, in una zona ottimamente servita e ricca di negozi di prima necessità.

Soluzione ideale per chi cerca un ambiente raffinato, pronto da abitare, in una delle aree più comode e ben collegate della città.

Mostra tutto

Nelle vicinanze

Trasporto pubblico Trasporto pubblico
Palestro
Palestro
1,3 Km
Porta Venezia
Porta Venezia
1,4 Km
stazione di Milano Dateo
stazione di Milano Dateo
310 m
stazione di Milano Porta Vittoria
stazione di Milano Porta Vittoria
900 m
Piazza Emilia
Piazza Emilia
390 m
Ricariche auto elettriche Ricariche auto elettriche
A2A Corso Indipendenza
330 m
A2A Isola Digitale Largo Marinai D'Italia
700 m
A2A Isola Digitale Cinque Giornate
760 m
A2A Corso Monforte
1,0 Km
A2A Palazzo di Giustizia
1,3 Km
Scuole Scuole
Scuole
640 m
Istituto comprensivo Pisacane e Poerio
660 m
Scuola elementare Cinque Giornate
700 m
Liceo Scientifico Statale Renato Donatelli
710 m
TJ Taylor Formazione Linguistica
750 m
Farmacia Farmacia
Italia
310 m
Farmacia Moizio
350 m
Archimede
360 m
Farmacia Plebisciti
370 m
Castelmorrone
430 m
Ospedali Ospedali
Ospedale Macedonio Melloni
270 m
Centro Medico Milano Tree Of Life S.r.l.
970 m
Ospedali
1,5 Km
Istituto Nazionale dei Tumori
1,6 Km
Policlinico di Milano
1,7 Km
Supermercati Supermercati
Supermercati
340 m
Punto SMA
370 m
NaturaSì
380 m
Pam
530 m
Esselunga
540 m
Negozi Negozi
Il Salvagente
130 m
Panizzeria
260 m
Negozi
370 m
Modes
470 m
Panificio Davide Longoni
500 m
Bar Bar
Bar
280 m
feelgood
460 m
Balubà
540 m
Impronta birraia
610 m
Anna
620 m
Ristoranti Ristoranti
II Pinguino blu
130 m
Dinette
130 m
Nonna Maria
150 m
Pizzeria Trattoria AL Bronzetti
170 m
Sapore della Grecia
280 m
Mostra tutto

Caratteristiche

Rif.:
61194906
Piano:
Ammezzato di 8 con ascensore
Totale piani:
8
Camere da letto:
1
Arredamento:
Completo
Condizionamento:
Autonomo
Mostra tutto
Prezzo Prezzo
€ 420.000
Rata mutuo Rata mutuo
€ 1.995 / mese
Spese annue Spese annue
€ 3.500
Proponi il tuo prezzoProponi il tuo prezzo

Classe Energetica

D
D
D
D
D
D
D
D
D
Anno di costruzione:
1950
Riscaldamento:
Centralizzato
Tipo impianto:
A pavimento
Tipo alimentazione:
Metano

Ti interessa visionare l'immobile?

Fissa un appuntamento  Fissa un appuntamento

Richiedi informazioni

Clicca su Leggi per aprire l'informativa
* Questi campi sono obbligatori

Calcola il tuo mutuo

Semplice e senza impegno
Anticipo

( % )
Mutuo

( % )

pochi semplici passi

inserisci i tuoi dati
Questionario completato
Grazie per aver richiesto un appuntamento senza impegno con un nostro Consulente del Credito e Assicurativo.

Hai inserito correttamente tutti i dati necessari e a breve riceverai una e-mail con un link da convalidare per inviare i tuoi dati.
Affiliato
Studio 22 Marzo Sas
Via Camillo Hajech, 3 20123 Milano (MI)

Il nostro staff


  • Jezer Benavente
    Collaboratore

  • Antonio Di Noia
    Collaboratore

  • Francisco Ferdinando Buongiorno
    Affiliato
Via Camillo Hajech, 3 20123 Milano (MI)
Zona: Corso XXII Marzo-Dateo
Mostra su mappa
Affiliato
Studio 22 Marzo Sas
Via Camillo Hajech, 3 20123 Milano (MI)

2026 Tecnocasa Franchising S.p.A. - P. IVA 08365160152 - Via Monte Bianco 60/A 20089 Rozzano (MI). Ogni agenzia ha un proprio titolare ed è autonoma. Privacy policy | Policy utilizzo | Cookie policy